*NEU* 3-Zimmer-Wohnung mit Balkon in Leipzig-Grünau
real-estate.detail.contact-headline
Kontaktieren Sie Michèle Jähnel für Fragen und Besichtigungen.real-estate.detail.price-headline-left
- 
            
- 
            Additional costs86,00 €
- 
            Heating costs101,00 €
- 
                714,00 €
- 
            1.054,00 €
real-estate.detail.price-headline-right
- 
            Flat ID5098/01180/001/0010
- 
                Year of construction1978
- 
                real-estate.detail.conditionNeuwertig
- 
                Energy sourceDistrict Heating
- 
                Legal declarationEnergy performance certificate is available
- 
                Certificate typereal-estate.detail.energyperformancecertificatetype.verbrauch
- 
                Thermal characteristics79.00 kWh/(m2a)
Description
    Das 5-stöckige Wohnhaus wurde 1978 erbaut - Im 3. Obergeschoss liegt Ihre neue Wohnung. Ein Personenaufzug ist nicht vorhanden. 
Lebendige Nachbarschaften und Service vor Ort: Unsere Mitarbeiter:innen begrüßen Sie in der regelmäßigen Mietersprechstunde im Mieterservicebüro ganz in der Nähe. Um die optimale Pflege der Anlage kümmert sich unser Hausmeisterservice.
Sichern Sie sich Ihren privaten Parkplatz! 
In vielen unserer Objekte bieten wir Ihnen die Möglichkeit, private Parkplätze anzumieten. 
Jetzt anfragen und bequem parken – schnell, einfach und stressfrei! Sprechen Sie uns an!
Furnishing
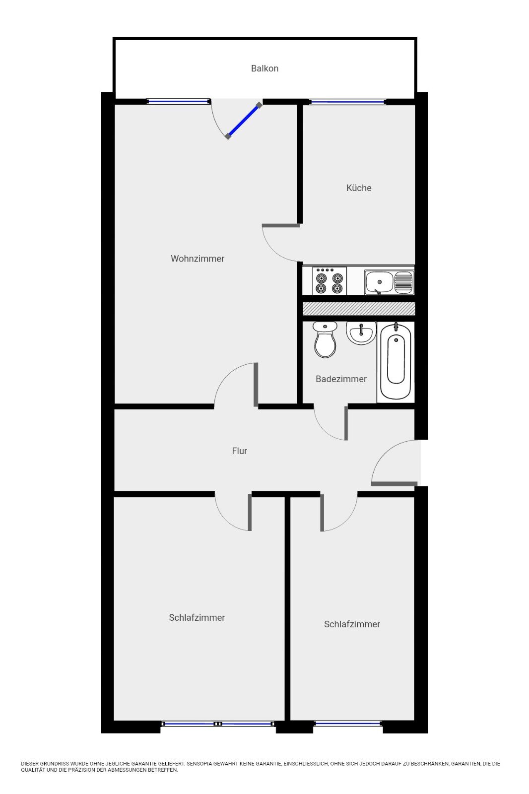
                Die 3-Zimmer-Wohnung verteilt sich auf ca. 70 m²
            
            - Balkon
            - WG-geeignet
            - PVC- Bodenbelag und Raufasertapete in den Wohnräumen
            - Anthrazite Boden- und weiße Wandfliesen in der Küche
            - Anthrazite Boden- und weiße Wandfliesen im Bad
            - Badezimmer mit Badewanne und Waschmaschinenanschluss
            - Haustiere nach Vereinbarung
            - Gemeinschaftlicher Trockenraum & Fahrradkeller
            - Keller nach Verfügbarkeit 
            - Hausmeisterservice
            - 24/7 Mieterservice & Mietersprechstunde
    
Location
    Willkommen in Leipzig - im Stadtteil Grünau. 
In einer ruhigen Nebenstraße liegt die gepflegte Wohnanlage. 
Im Umkreis von wenigen hunderten Metern befinden sich Supermärkte und Einkaufsmöglichkeiten des täglichen Bedarfs. Für die Kleinen gibt es Schulen und Kindergärten, die zu Fuß gut erreichbar sind.
Nahegelegene Haltestellen des öffentlichen Nahverkehrs gewährleisten eine gute Anbindung. 
Für die Freizeitgestaltung dienen Parks und Grünanlagen in der Nähe, sowie Sportvereine in der Umgebung.
Further information
Alle Informationen zur Datennutzung und Datenschutzrechten durch Grand City Property Ltd – Zweigniederlassung Deutschland finden Sie unter: grandcityproperty.de/datenschutz.
Wichtige Hinweise:
- Bitte senden Sie uns keine vertraulichen personenbezogenen Dokumente (z. B. Gehaltsabrechnungen) vor der Besichtigung zu. Sollten Sie dies dennoch tun, werden diese Dateien umgehend gelöscht.
- Der Energieausweis kann bei der Besichtigung vorgelegt werden (ausgenommen Stellplätze/Garagen).
- Die in der Anzeige verwendeten Fotos können Beispielfotos oder KI-generierte Visualisierungen (Kennzeichnung mit „virtually staged“) sein, die der besseren Veranschaulichung der Immobilie dienen und von den tatsächlichen Gegebenheiten abweichen können.
- Sämtliche Daten in diesem Exposé, einschließlich Bilder, Grundrisse und sonstige Beschreibungen wie auch Grundrissgrafiken mit Maßangaben oder Einrichtungen, dienen ausschließlich der allgemeinen Information und stellen keine verbindlichen Zusicherungen dar. Die Daten sind so gründlich wie möglich angegeben, dennoch lassen sich Fehler nicht ausschließen. Alle Angaben im Exposé sind daher unverbindlich und etwaige Änderungen vorbehalten. Wir übernehmen daher keine Gewähr für die Richtigkeit, Vollständigkeit und Aktualität der bereitgestellten Informationen. Maßgeblich sind allein die Vereinbarungen des zu schließenden Mietvertrages. Eine Haftung für fahrlässige Fehler oder Abweichungen der Angaben wird – soweit gesetzlich zulässig – ausgeschlossen.
 
                     
 
 
 
 
 
 
 
 
 
 
 
 
 
 
 
 
 
 
 
 
 
 
 
 
 
 
 
 
 
 
 
 
 
 
